Erfahrungen

In den letzten Jahren haben wir an mehreren Projekten unterschiedlicher Größe gearbeitet. Zu unseren Projekten gehören sowohl große Projekte wie öffentliche Bauwerke, Schulen, Büro und Verwaltungsgebäude und große Wohnanlagen, als auch kleine Projekte, wie z.B. Mehr- oder einfamilienhäuser etc.

Unsere oberste Priorität war immer die Pläne termingerecht und qualitativ hochwertig zu erstellen.

Sehen Sie hier ein paar Auszüge unserer Arbeiten. 

Wohnheim
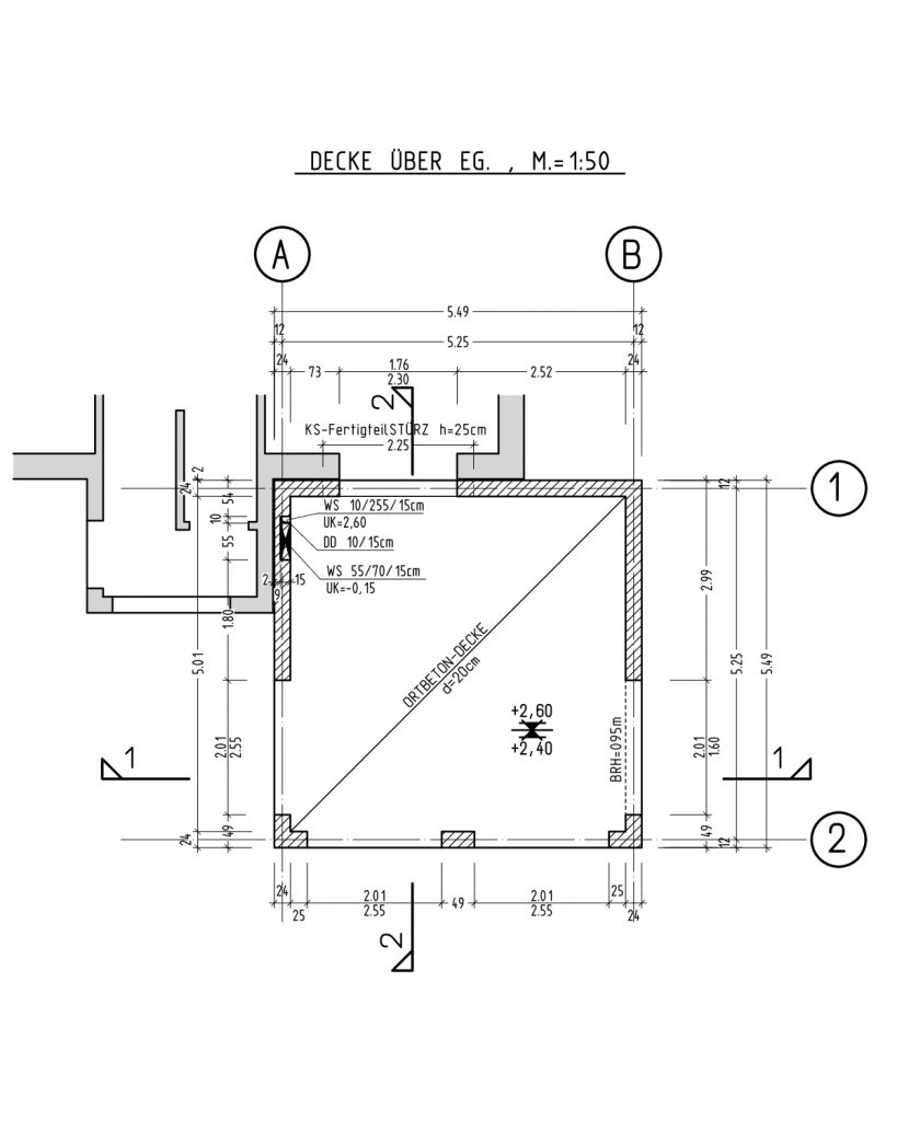
Einfamilienhaus
Schule
Umbau und Sanierung
Große Wohnanlagen
Produktionshalle mit Büro
Verwaltungsgebäude
Anabu en ein Mehrfamilienhaus
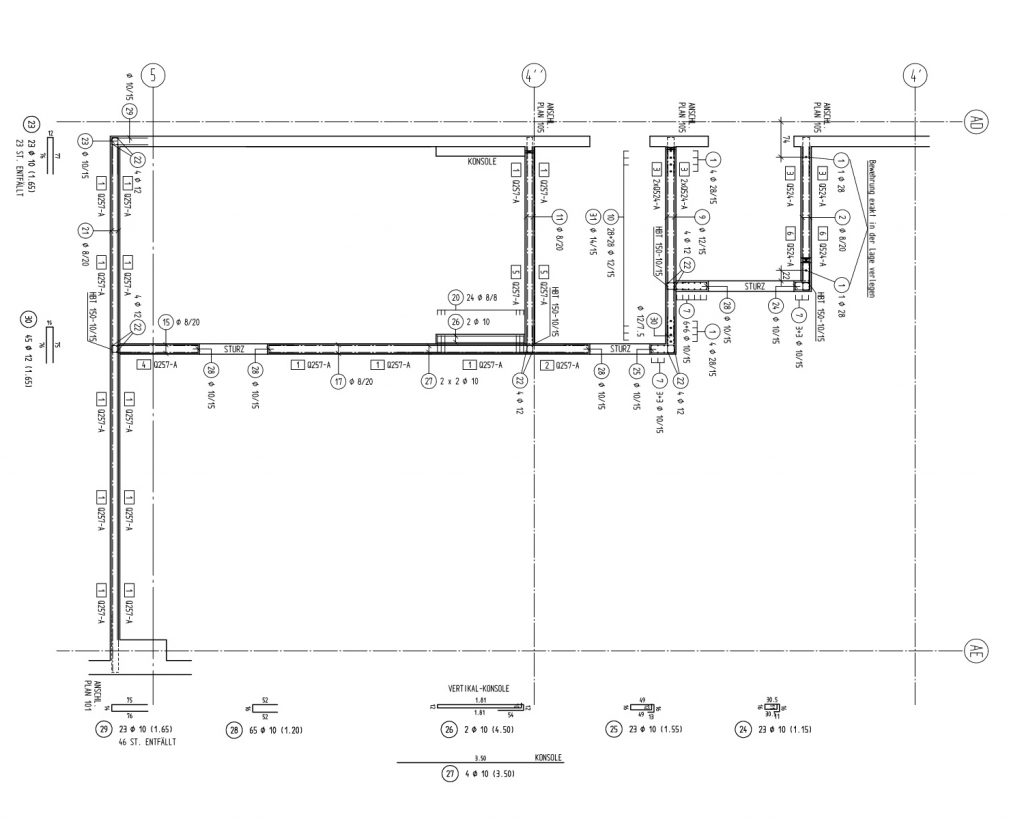
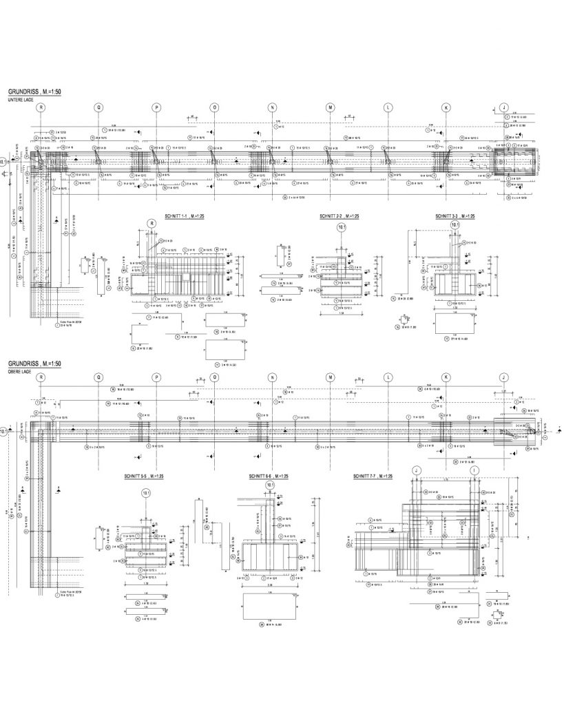
Fertigteile
3D
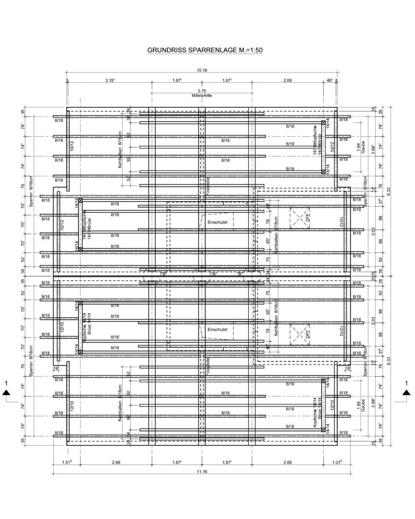
Dachstuhl
Scroll to Top