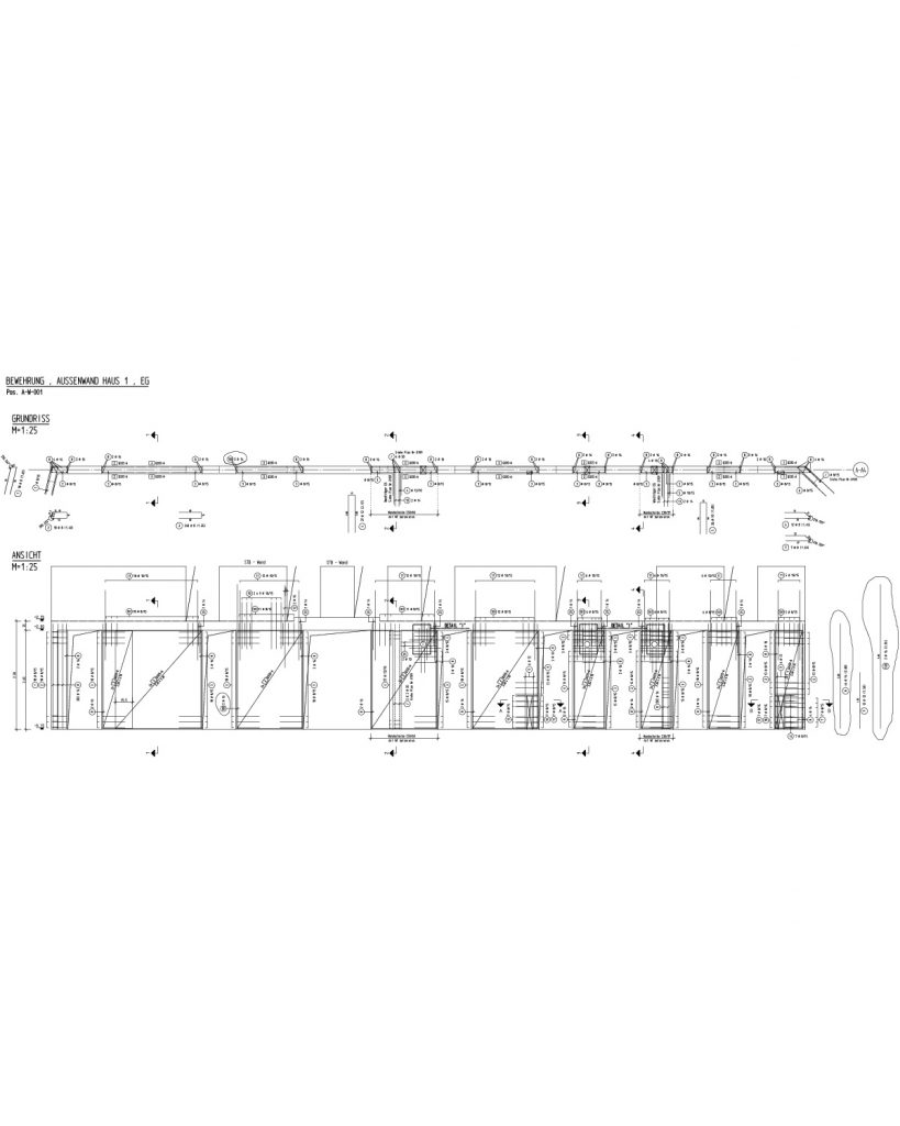
Große Wohnanlagen

Decke Über UG (Bauteil 01), Unterzug
Decke Über UG (Bauteil 02), Unterzug
Decke Über UG (Bauteil 03), Unterzug
Decke Über UG (Bauteil 01), obere Lage
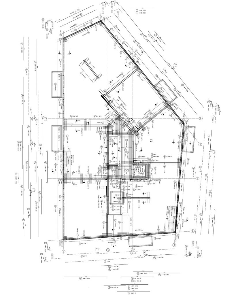
Stahlbetonwand im EG (Bauteil 01)
Decke Über EG (Bauteil 01), untere Lage, UZe, ÜZe, Randeinfassung und Wandanschlüsse
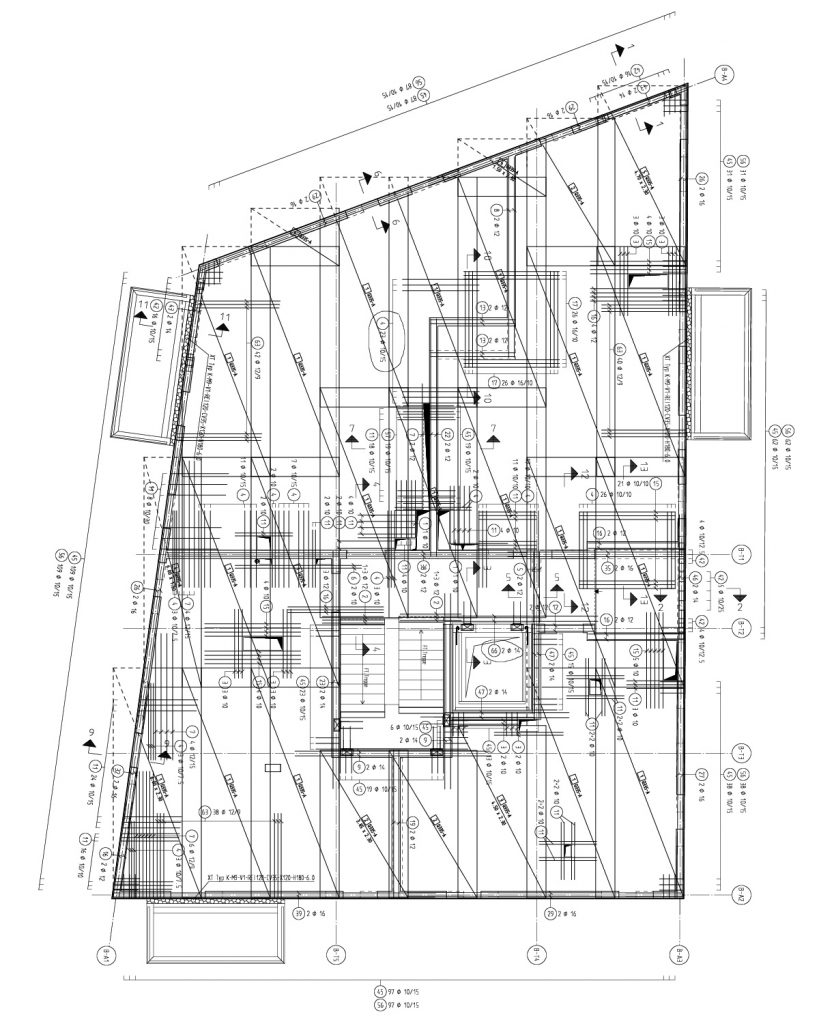
Decke Über EG (Bauteil 01), obere Lage
Decke Über EG (Bauteil 02), untere und obere Lage
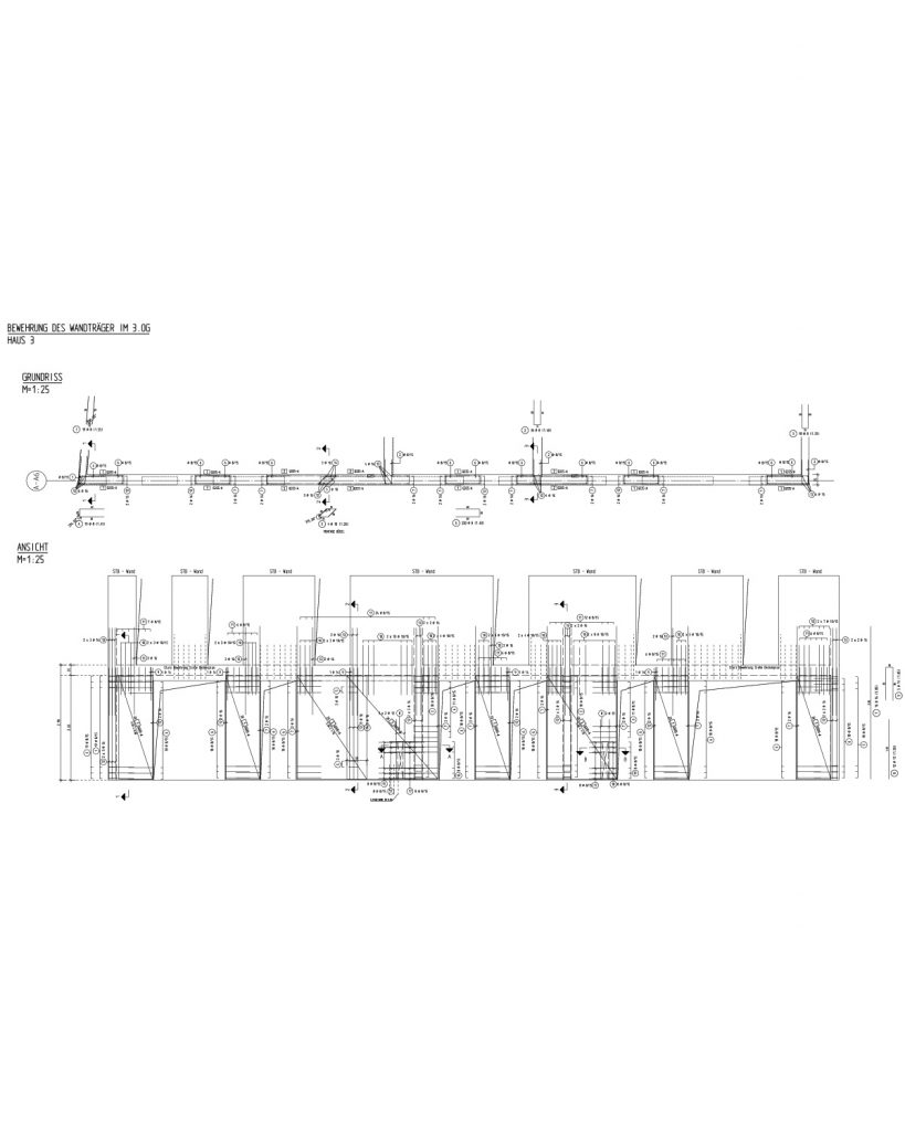
Wandartigerträger im 3.OG (Bauteil 01)
Scroll to Top