Anabu en ein Mehrfamilienhaus

Schalplan
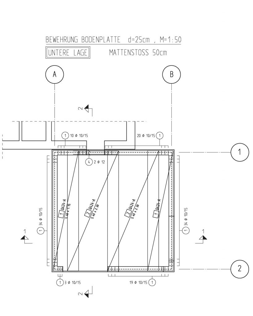
Bewehrung Bodenplatte
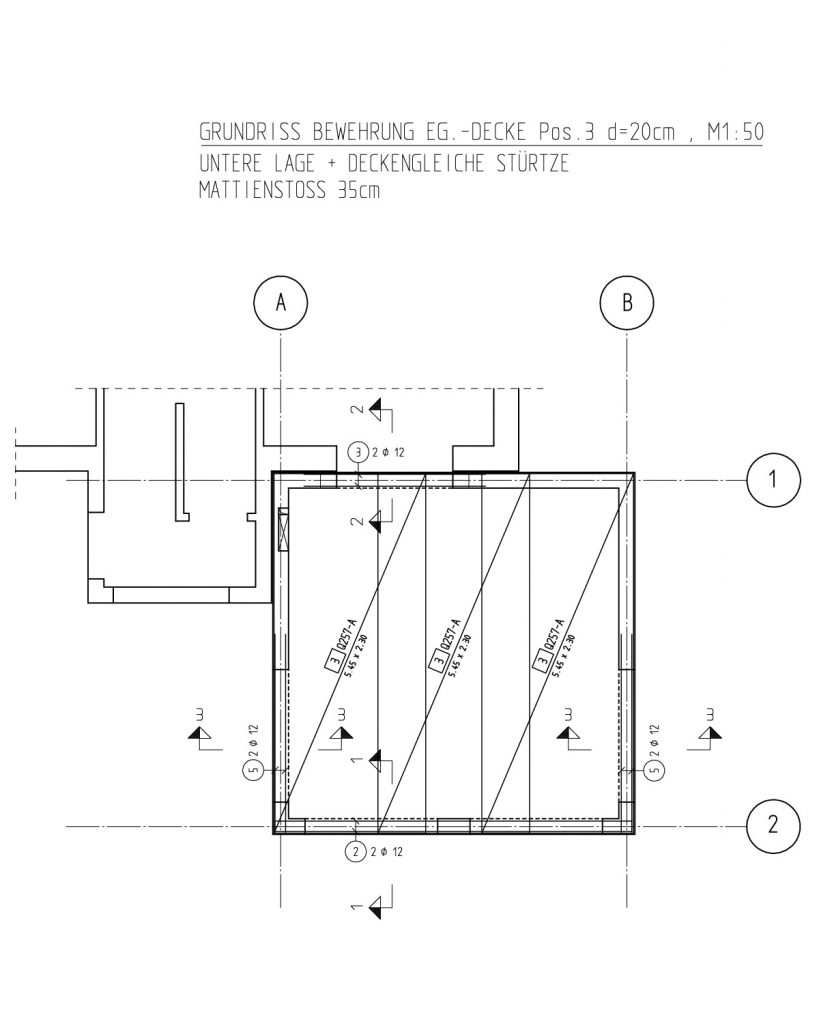
Bewehrung Decke über KG
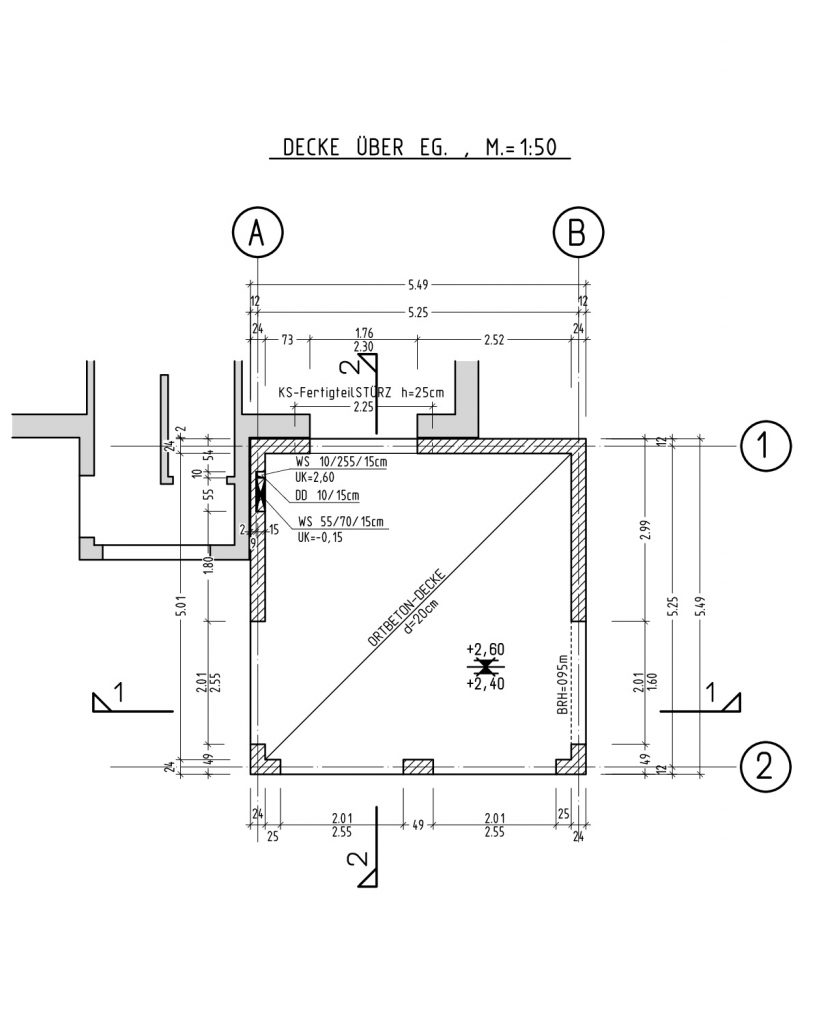
Bewehrung Decke über EG
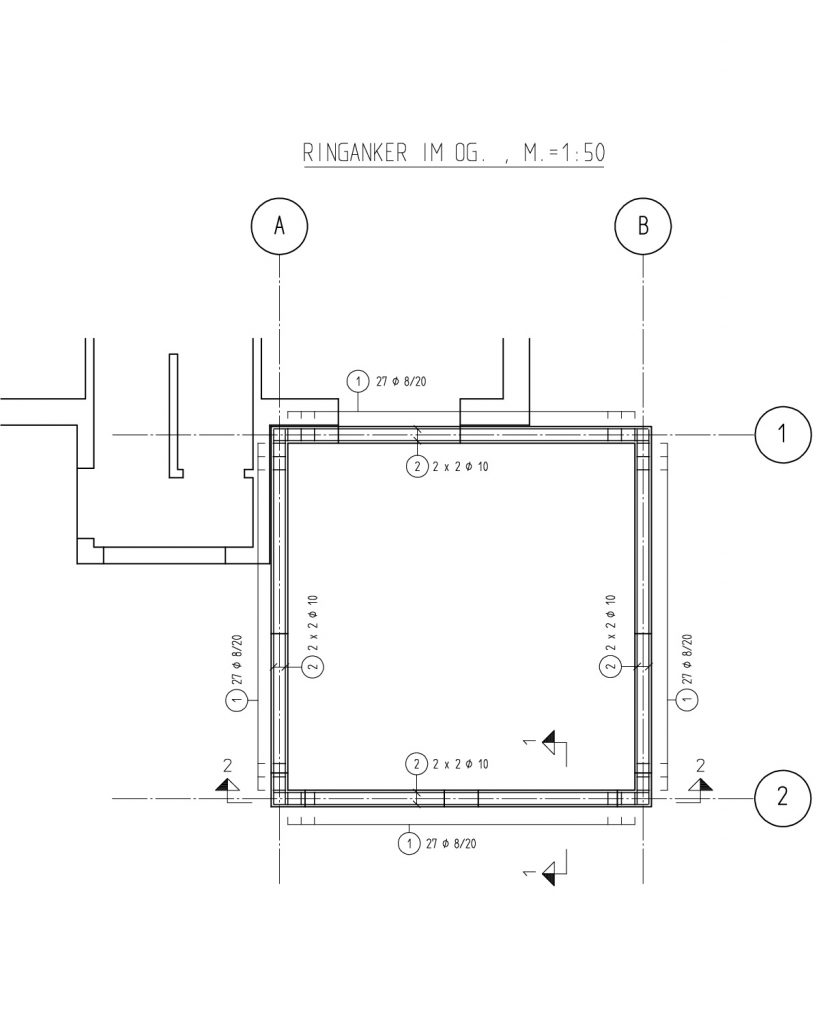
Bewehrung Ringanker
Scroll to Top