Fertigteile

Balkonplatte
Balkonplatte
Balkonplatte
Balkonplatte
Vordach mit Briefkasten
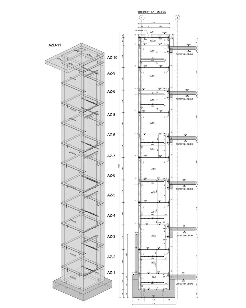
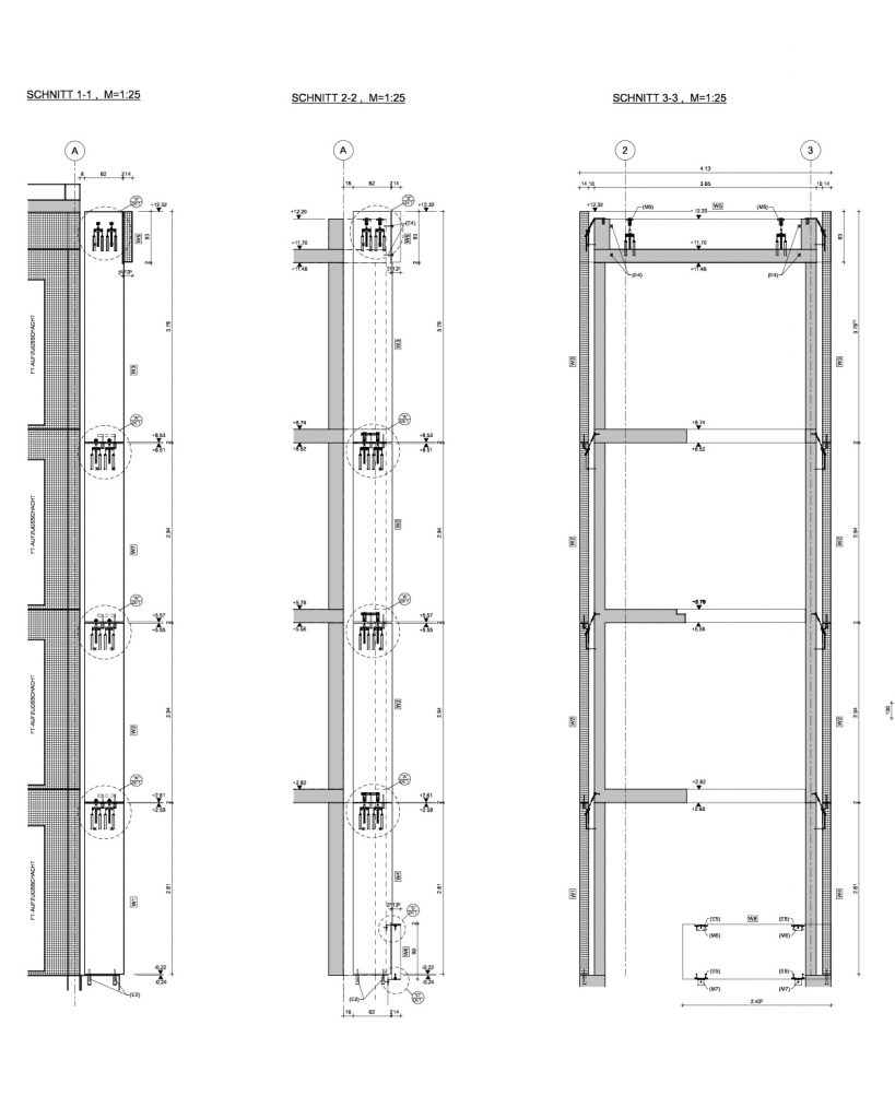
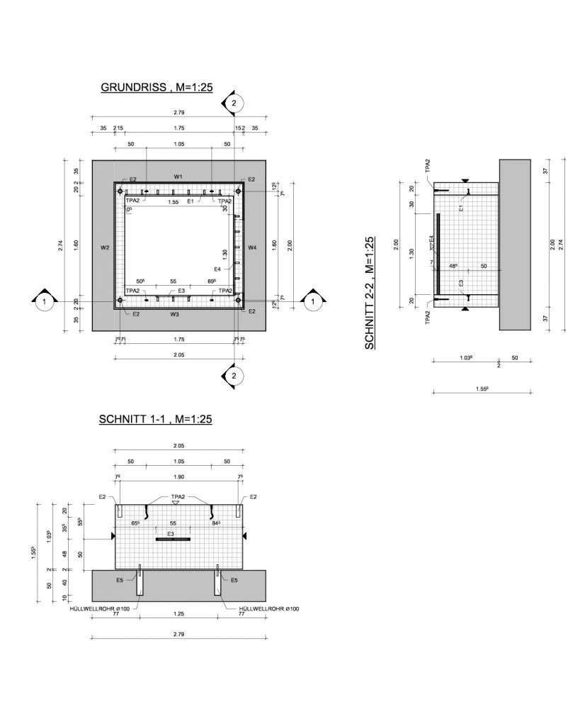
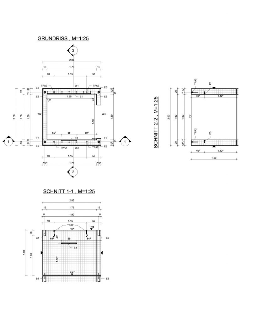
Aufzugsschacht
Aufzugsschacht
Aufzugsschacht
Treppe
Fassade
Fassade
Fassade
Fassade
Scroll to Top